ID CP2709280

Clădire de Birouri P+3 | 460 MPU | Selimbar

ID CP2709280

590,000 €

Spațiu de birouri de vânzare
Selimbar
460 mp
2008

Clădire de birouri P+3, 460 mp utili, zona accesibilă

Detalii proprietate:

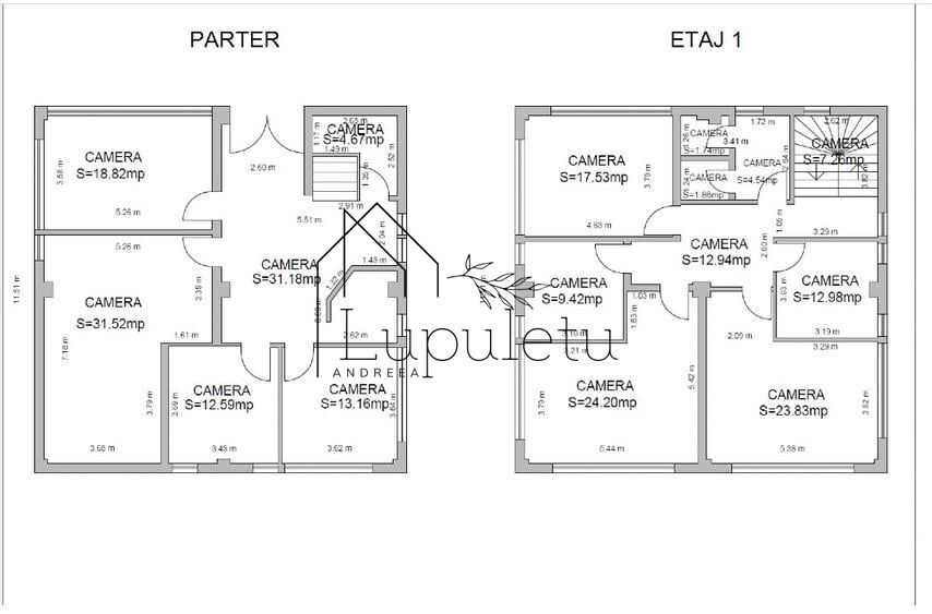
Suprafață construită la sol: 136 mp

Suprafață utilă totală: 460 mp

Compartimentare actuală: 19 birouri, 2 băi, 1 bucătărie

Regim de înălțime: P+3

An construcție: 2008 (clădirea permite recompartimentare integrală)

Disponibilitate: imediată

Facilități:

Acces direct din stradă asfaltată, largă, inclusiv pentru autovehicule mari

Internet, telefonie, infrastructură IT&C

Bucătărie proprie

Posibilitate de reorganizare a spațiului în funcție de necesități

Destinații posibile:

Clădire de birouri

Clinică medicală / stomatologică

After-school / centru educațional

Alte activități comerciale sau administrative

Preț de vânzare: 590.000 EUR + TVA

Conform Codului Fiscal, pentru tranzacții între persoane juridice plătitoare de TVA se aplică mecanismul de taxare inversă.

Proprietatea are un potențial ridicat de dezvoltare, fiind ideală atât pentru utilizare imediată, cât și pentru adaptare la nevoi personalizate.

Pentru mai multe detalii sau programarea unei vizionări, contactează-ne și menționează ID-ul anunțului:CP2709280

Citește mai mult

  • Tip imobil
    Clădire birouri
  • Număr camere
    19
  • Număr băi
    2
  • Suprafață construită
    136 mp
  • Suprafață utilă
    460 mp
  • Disponibilitate
    Imediat
  • Compartimentare spațiu
    Compartimentat
  • An construcție
    2008
  • Număr etaje clădire
    3

Facilități

Centrală termică
Centru comercial în apropiere
Ferestre care se deschid
Gresie
Internet
Parcare deschisă
Parchet
Stație de autobuz în apropiere
Telefon
Vedere spre oraș
Lupuletu Andreea - Lupuletu Claudia-Andreea
Lupuletu Andreea
Fondator

0790267777


Solicită chiar acum o vizionare
Telefon
Sună acum Solicită vizionare
Necesare:

Site-ul nu poate funcționa corect fără aceste cookie-uri. Vezi cookie-urile

Statistică:

Strângem statistici anonime despre voi, vizitatorii unici, pentru a vă îmbunătăți experiența dumneavoastră. Vezi cookie-urile

Marketing:

Pentru a ne promova mai eficient serviciile noastre, folosim cookies pentru a vă identifica și a vă oferi proprietăți și servicii personalizate. Vezi cookie-urile

Acest site folosește cookies, află detalii. Alege ce tipuri de cookies dorești să permitem: